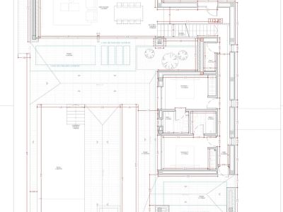
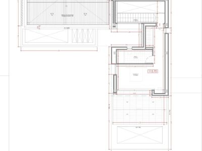
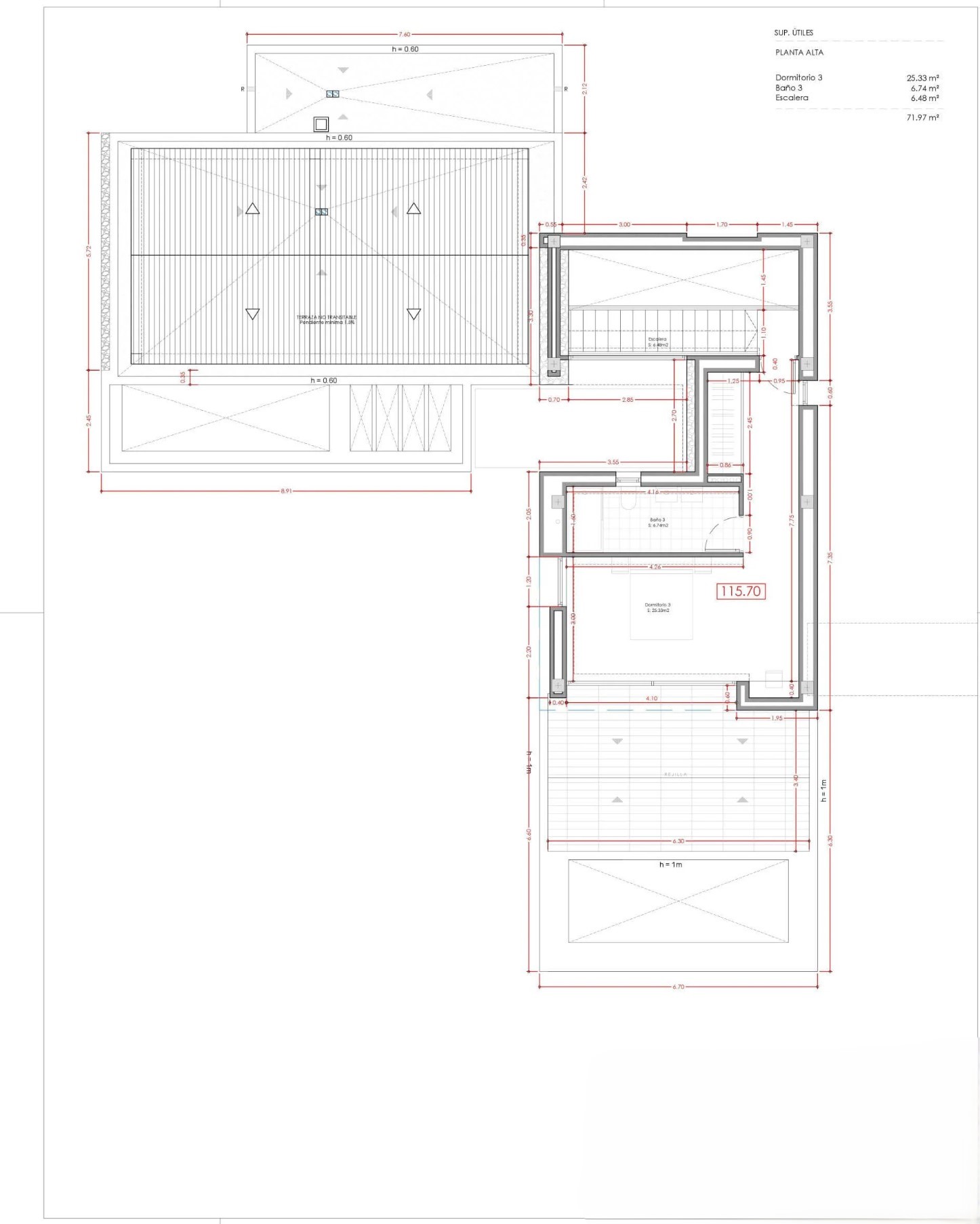
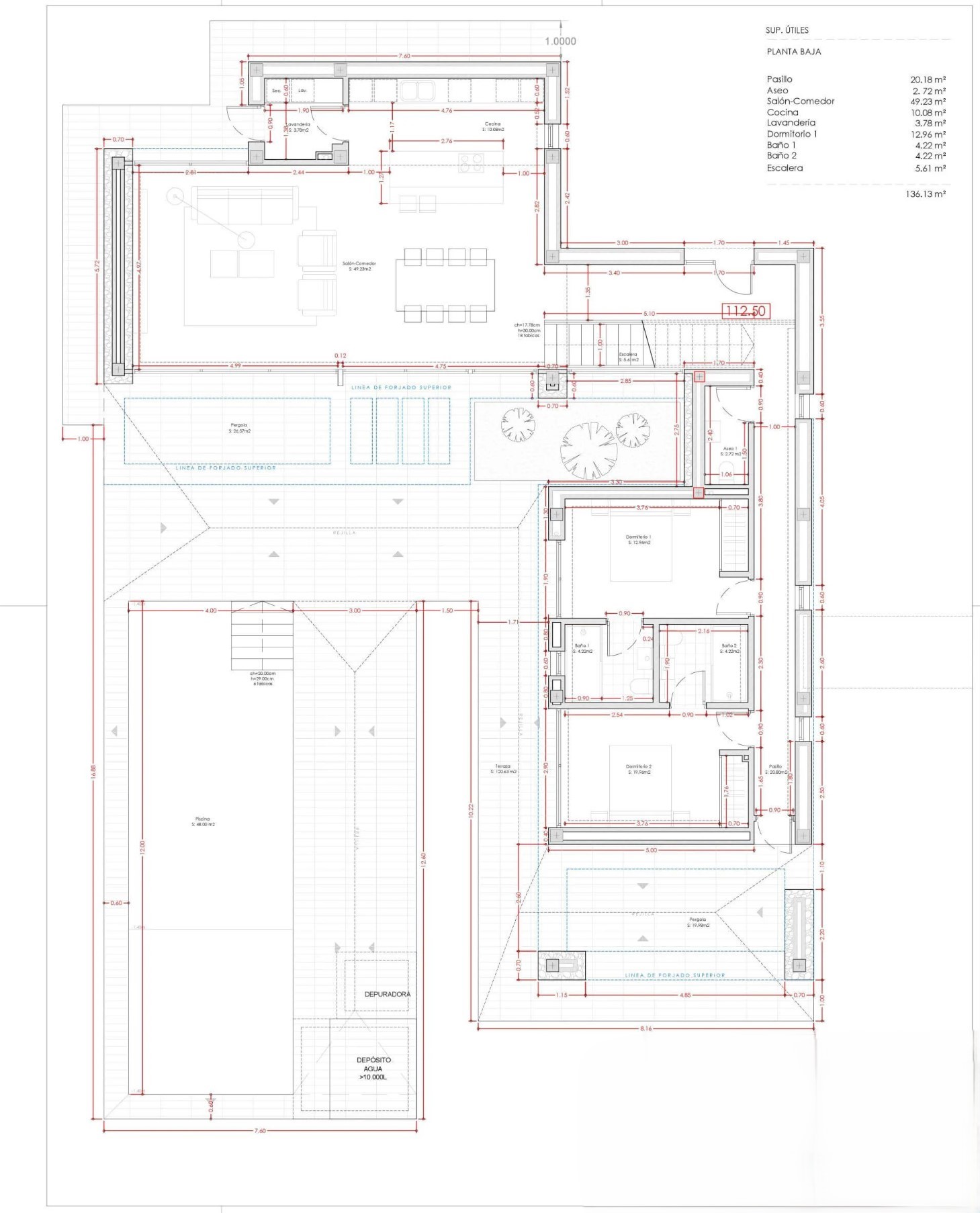
Chalet
V666C
Dénia
€950.000
3
Ch.
4
Sdb.
170m²
Const.