Villa contemporaine sur deux niveaux avec rez-de-chaussée en pierre, terrasse à l'étage avec pergola en bois et piscine à débordement bordée de palmiers.
Villa contemporaine sur deux niveaux avec rez-de-chaussée en pierre, terrasse à l'étage avec pergola en bois et piscine à débordement bordée de palmiers.
Villa en cours de construction révélant sa structure en béton armé, ses étais métalliques et ses coffrages en bois sur un terrain en pente.
Villa en cours de construction révélant sa structure en béton armé, ses étais métalliques et ses coffrages en bois sur un terrain en pente.
Phase de fondation présentant des murs de soutènement en béton armé et des coffrages verticaux pour les colonnes structurelles du bâtiment.
Phase de fondation présentant des murs de soutènement en béton armé et des coffrages verticaux pour les colonnes structurelles du bâtiment.
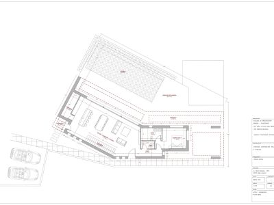
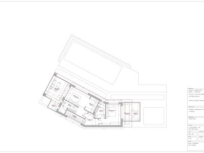
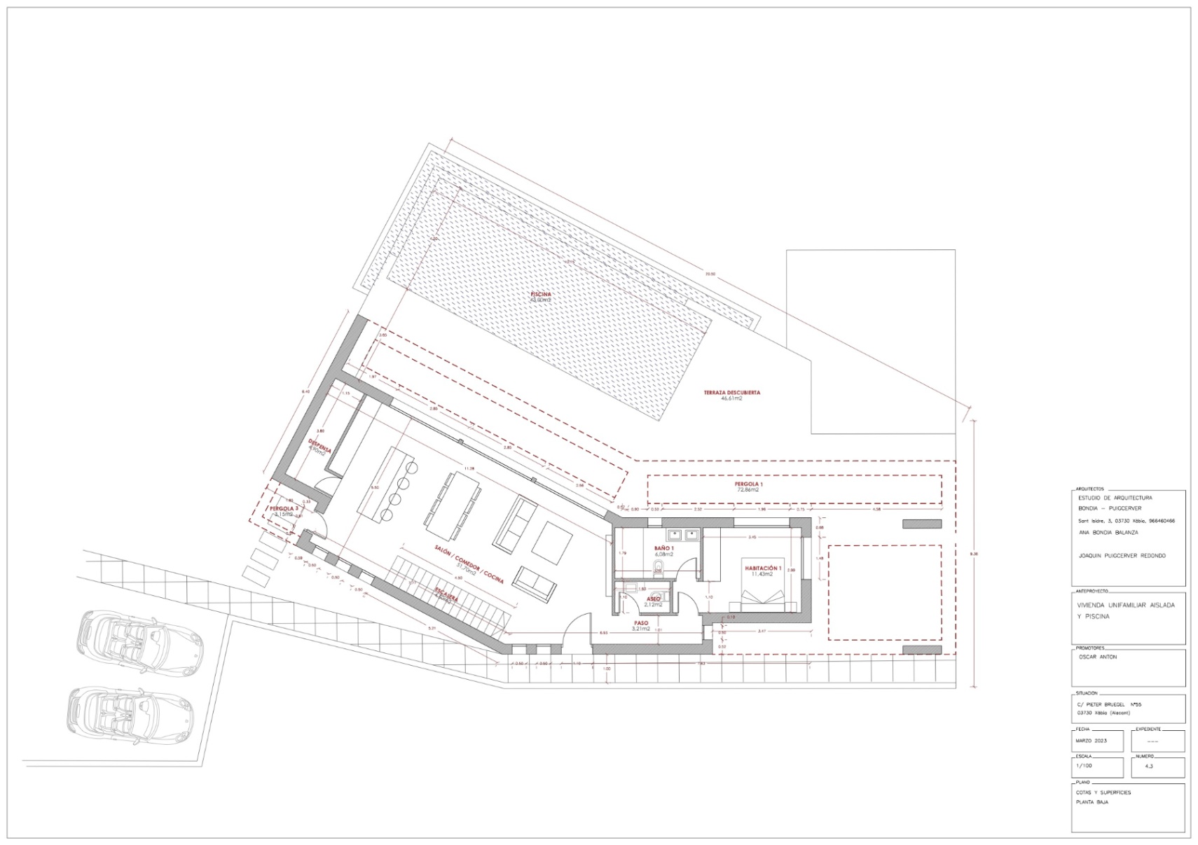
Plan d'architecte détaillé du rez-de-chaussée, comprenant un espace de vie ouvert, une chambre, une piscine et de grandes terrasses extérieures avec pergolas.
Plan d'architecte détaillé du rez-de-chaussée, comprenant un espace de vie ouvert, une chambre, une piscine et de grandes terrasses extérieures avec pergolas.
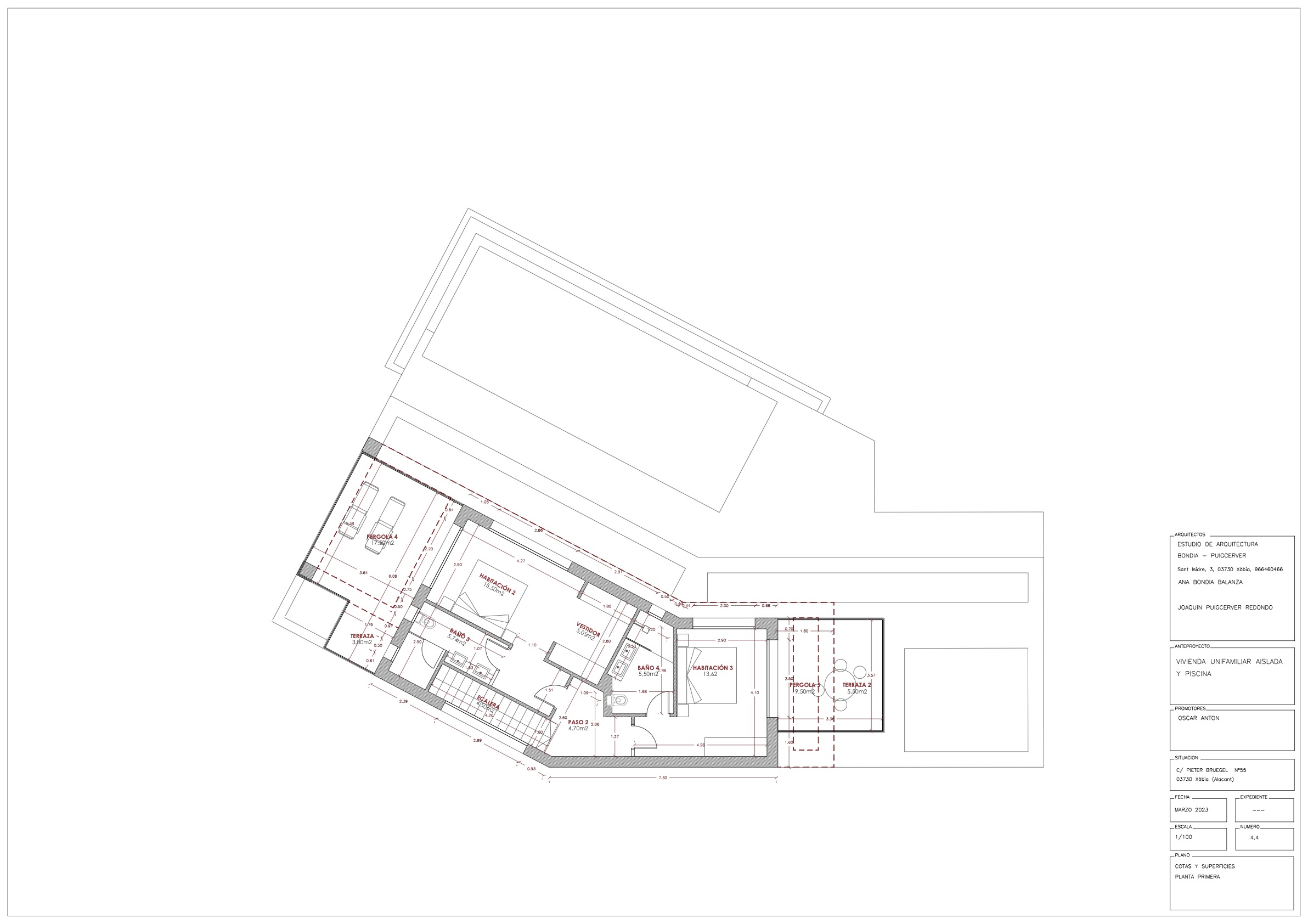
Plan architectural du premier étage détaillant deux chambres avec salles de bains privatives, un dressing et des terrasses extérieures avec pergola.
Plan architectural du premier étage détaillant deux chambres avec salles de bains privatives, un dressing et des terrasses extérieures avec pergola.
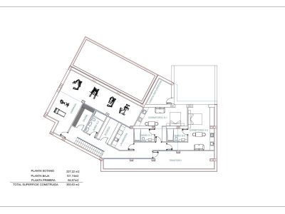
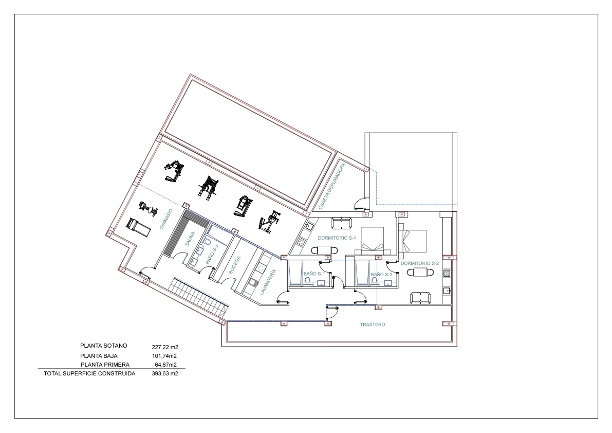
Plan technique du sous-sol illustrant une salle de sport, un sauna, une cave à vin, une buanderie et deux chambres avec salles de bains attenantes.
Plan technique du sous-sol illustrant une salle de sport, un sauna, une cave à vin, une buanderie et deux chambres avec salles de bains attenantes.
6

Villa moderne de construction neuve à Jávea avec piscine à débordement

1.850.000€
Jávea
Ref: V639
5
chambres
5
salles de bain
393m²
Surf. construite min.
1,050m²
Surf. terrain min.
2026
Année de construction
A
Classe énergétique

Description

Cette propriété exceptionnelle de construction neuve à Jávea représente le sommet de l'architecture méditerranéenne moderne. Répartie sur trois niveaux soigneusement conçus, la villa offre un total de 393 m² de surface construite sur un terrain garantissant intimité et vues dégagées. Le rez-de-chaussée se distingue par son concept ouvert, intégrant un grand salon-salle à manger avec une cuisine design et une buanderie séparée, communiquant directement avec les vastes terrasses et l'espace piscine. Ce niveau comprend également une chambre avec salle de bain attenante et des toilettes invités.

L'étage supérieur abrite deux chambres supplémentaires, dont la suite parentale avec dressing privé et accès aux terrasses supérieures avec pergolas. Le sous-sol est un véritable centre de bien-être et de loisirs, comprenant une salle de sport complète, un sauna, une cave à vin, une buanderie et deux chambres supplémentaires avec leurs salles de bain respectives, idéales pour les invités ou le personnel. Les espaces extérieurs sont conçus pour profiter au maximum du climat local, avec une piscine design, de grandes zones de solarium et un parking privé.
Avis important Les informations relatives à ce bien sont fournies à titre indicatif et n'ont pas de valeur contractuelle. Elles peuvent être sujettes à des erreurs, des changements de prix, des omissions ou un retrait du marché sans préavis. Pour confirmer l'exactitude des données, nous vous recommandons de contacter Andrea Y Olaf Inmobiliaria.

Piscine

Piscine privée

Extérieur

Jardin Terrasse Pergola

Vues

Vue panoramique

Intérieur

Cuisine équipée Cuisine ouverte Buanderie Dressing Placards intégrés Double vitrage

Parking & Garage

Parking privé

Bâtiment / Communauté

Salle de sport

Trouvez votre bien

Affinez votre recherche ci-dessous

Mandat de recherche : Nous cherchons, vous trouvez

Mandat de recherche : Nous cherchons, vous trouvez

Service exclusif de recherche personnalisée. Avec notre mandat de recherche, nous vous représentons dans la quête de vot...

Voir plus
Sélectionnez un type
Type de bien
House / Villas
Apartment
New Construction
Land
Commercial
Others
Sélectionnez une localisation
Localisation
Budget
Budget
Chambres
Chambres
Indifférent
Piscine
Indifférent
Salles de bain